- · 各位帮我看看,我也遇到房子问题了(作者:烧录一族 时间: 点击数: 108)
-
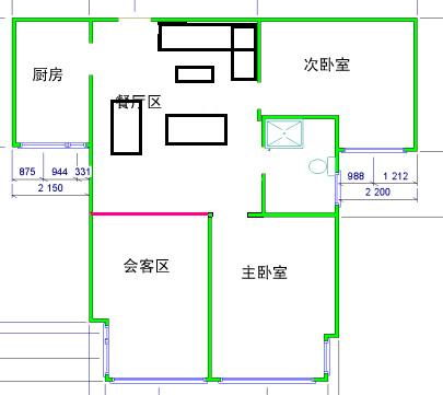
1,会客区与餐厅区连在一起,宽4米,长10米,真的很头疼,对于这样的房间有何好建议?
2,这样的房间如何配置空调,不用柜机,2匹*1?1匹*2?1.5匹*2?1.5匹+1匹?哪个好呀!
谢谢!
·
(作者:color4 时间:2002-08-28 18:54:51)- 长边摆放,听音面积4*6米
不过看图您的客厅靠阳台窗子太多,玻璃可是好声的杀手.;)
我的客厅用了一台三菱1.5匹单冷,足够制冷了.噪声很小.- 长边摆放,听音面积4*6米
·
(作者:sunzhboy 时间:2002-08-28 19:41:44)- 40平米估计为6000W
可买一台6000w柜机
或隔断买两台3200w- 40平米估计为6000W
·
(作者:czlau 时间:2002-08-28 21:05:59)- 1.为了音响,只好牺牲主房的隐蔽性,可通过缩小厕所来扩大一点主房.
2.空调本来是柜机好过壁挂的,但看来你的地方只能用壁挂式的了.
3.客厅与餐厅可用来隔断,有几种方法,造墙对音响最好可是不好看,估计家里人是通不过的.:)还可以用电视柜/音响柜/博古架等.
4.后面玻璃的处理,听刘汉盛的:聆聽位置後面這片?其?可以吸,也可以擴散。用吸是怕您離後?太近,反射音太?姟S脭U散是因為離後?較遠,擴散可以使聲音更自然。吸音材料的厚度呢?您不能用一般窗簾那麼薄的布料吸音,因為效果不彰。至少都要有厚絨布的厚度才可以。而且,如果您要像窗簾一般吊在側?,請注意要打皺摺,就像窗簾的作法一樣。
5.另一个方案,也可以把主卧与次卧对调,如下图.·
(作者:烧录一族 时间:2002-08-29 06:41:03)- 除了卫生间门口对着的那堵墙可动以外,其余墙都不能动!
·
(作者:sword 时间:2002-08-29 09:30:06)- 你这间房应该是框剪结构,厨房、卫生间的墙是万万不可拆的——因为防水和承重原因。主卧和厅之间的墙局部可拆。建议如下:主卧门后退,把这部分的墙拆了(连同与厅之间的分隔墙一起),使主卧成为一个规范的矩形,这样可以放大原来的餐厅区——使之也可成为一个小会客区(按你报的尺寸好象也有20多平米吧),剩下的你就可以布置你的听音区了,如果要做隔断,可以做活动的(你去浦东科技馆看看顶楼——老江吃饭的那间——活动墙参考一下)。
空调么看来只能选3匹的机器了!- 你这间房应该是框剪结构,厨房、卫生间的墙是万万不可拆的——因为防水和承重原因。主卧和厅之间的墙局部可拆。建议如下:主卧门后退,把这部分的墙拆了(连同与厅之间的分隔墙一起),使主卧成为一个规范的矩形,这样可以放大原来的餐厅区——使之也可成为一个小会客区(按你报的尺寸好象也有20多平米吧),剩下的你就可以布置你的听音区了,如果要做隔断,可以做活动的(你去浦东科技馆看看顶楼——老江吃饭的那间——活动墙参考一下)。
·
(作者:sword 时间:2002-08-29 09:41:33)·
(作者:双人鱼 时间:2002-08-29 10:25:39)·
(作者:双人鱼 时间:2002-08-29 10:30:46)- 拆墙前应该让建筑方面的朋友帮看一下可不可以拆,如果有原建筑图,那就更保险了。
·
(作者:sword 时间:2002-08-29 14:03:49)- 鱼兄,本人在建设行业地干活,红色的线代表活动墙,不是忘了门,看烧录兄的房子款式还是蛮新的,结构不象板式高层,所以,分割墙顶部会有圈梁的,因此不用太害怕,我也在上海,虹桥世贸商城,烧录兄的房子在哪里?告诉我可以给建议。
·
(作者:烧录一族 时间:2002-08-30 15:34:31)- 我的房子在江宁路武定路,静安体育中心对面。
·
(作者:sword 时间:2002-08-31 19:15:31)·
(作者:烧录一族 时间:2002-08-31 19:35:31)- 是“申发展大厦”,申银万国的
·
(作者:sword 时间:2002-08-31 20:58:54)- 判断能不能拆墙办法很简单,在欲拆除部位的房顶往下量30CM处,铲掉一些涂料和沙浆层,露出来的是砖即可拆(30CM一般是顶部圈梁的厚度,注:圈梁不可拆),卫生间门前的那堵墙,从起点处横向铲掉涂料和沙浆层,露出来的是砖即可拆(表明此处无混凝土浇筑立柱),曾经有朋友把混凝土浇筑立柱也拆了,又竖了一根钢管支撑(闲来可以跳钢管舞wahahaha~~~~~~~~~~~~)——后面括号里是说笑。
说句大话——上海没有我不知道的建筑——我可以了解全部的建筑项目报建和施工许可证发放情况。- 判断能不能拆墙办法很简单,在欲拆除部位的房顶往下量30CM处,铲掉一些涂料和沙浆层,露出来的是砖即可拆(30CM一般是顶部圈梁的厚度,注:圈梁不可拆),卫生间门前的那堵墙,从起点处横向铲掉涂料和沙浆层,露出来的是砖即可拆(表明此处无混凝土浇筑立柱),曾经有朋友把混凝土浇筑立柱也拆了,又竖了一根钢管支撑(闲来可以跳钢管舞wahahaha~~~~~~~~~~~~)——后面括号里是说笑。
- 鱼兄,本人在建设行业地干活,红色的线代表活动墙,不是忘了门,看烧录兄的房子款式还是蛮新的,结构不象板式高层,所以,分割墙顶部会有圈梁的,因此不用太害怕,我也在上海,虹桥世贸商城,烧录兄的房子在哪里?告诉我可以给建议。
·
(作者:sunzhboy 时间:2002-08-29 13:53:42)
