当前位置:首页>专题论坛>全部
-
·
我爱这个农村来的老头
(作者:八爪鱼 时间: 点击数: 673)
- 收藏
-
布鲁克纳,E大调第七交响曲 我的最爱 布鲁克纳从来都没有写过有标题或附加声乐的交响曲,也没有写过交响诗。布鲁克纳的交响曲,进一步扩大了传统的奏鸣曲形式,庄重而宏伟,独具特色。本曲首演于 1884 年,并一举成功,使布鲁克纳名闻整个德国,可见本曲是推动这位音乐巨匠的全部交响曲为世人所认识的原动力。就此而言,本曲堪称布鲁克纳的成名之作,也被公认为他所有作品中的地位最高者。
全曲共分为四个乐章:
第一乐章:中庸的快板,适度快活地。第一主题呈幻想性质,再现时全乐章达到了高潮;第二主题在舒畅愉快的气氛中呈现。乐章中的全部音乐都如同布鲁克纳的意志一般,充分表现出主题的意义与交响乐的雄浑力度。
第二乐章:慢板,作者指定为“极庄严而徐缓地”,这是本交响曲中最著名的乐章。整个乐队以光辉的音色奏出主题,并以这个主题为中心,兼含音诗的特点,继续发展。本乐章可以说是布鲁克纳交响曲最高境界的表现。
第三乐章:谐谑曲,非常快地。谐谑曲各声部的构成极为丰富,这个乐章同整部作品的庄严性质非常吻合。
第四乐章:终曲,快速地。众赞歌的主题奠定了崭新而崇高的情绪和华丽而充满幻想般的气氛。最后,整个乐队在灿烂辉煌的齐奏中结束全曲。
-
·
今天运气好看到(视听论坛)
(作者:老装 时间: 点击数: 977)
- 收藏
-
好长时间(视听论坛)点击不开,今天运气好又点开了,本菜鸟是ADSL电讯1兆宽带,请教班竹有什么要令巧门吗?TKS!
-
·
今年广州白天鹅上,我个人感觉大证据这次声音调的挺不错.让我对它改观很大....
(作者:feng 时间: 点击数: 1240)
- 收藏
-
·
(作者:feng 时间:2007-12-02 02:51:48)- 在大证据后面还有12台超低与它的完美配合....我觉得这两东西的结合确实调得挺成功,不错!
·
(作者:feng 时间:2007-12-02 02:56:19)- 欣赏价值嘛....这么贵的东西不听不行,声音就是风格上各人喜欢了.起码有机会听过了,不过我听了一分钟后所有的注意力倒是全集中在两个MM的各种摆位上了!呵呵!
·
(作者:feng 时间:2007-12-02 03:13:53)·
(作者:feng 时间:2007-12-02 03:38:43)·
(作者:合肥蒋鹏 时间:2007-12-02 09:46:23)- 也是用仲裁者推的,声音非常的全面大气,而且不失细腻,用黑胶播放之后,钢琴的形体感、质感给我的印象很深刻,低频控制也恰到好处,在感觉低频要过的时候恰好收住,高频一向是单拿的强项,纷纷洒洒、俊雅飘逸。
这套系统在我心目中就是终极梦幻产品。- 也是用仲裁者推的,声音非常的全面大气,而且不失细腻,用黑胶播放之后,钢琴的形体感、质感给我的印象很深刻,低频控制也恰到好处,在感觉低频要过的时候恰好收住,高频一向是单拿的强项,纷纷洒洒、俊雅飘逸。
·
(作者:feng 时间:2007-12-03 01:33:48)·
(作者:feng 时间:2007-12-03 01:36:08)·
(作者:feng 时间:2007-12-03 01:37:52)·
(作者:feng 时间:2007-12-03 02:00:16)·
(作者:feng 时间:2007-12-03 02:02:23)·
(作者:feng 时间:2007-12-03 02:04:59)·
(作者:feng 时间:2007-12-04 23:07:17)·
(作者:feng 时间:2007-12-04 23:10:11)·
(作者:feng 时间:2007-12-04 23:14:25)
-
·
请教各位老师和兄台关于视听室的装修
(作者:zxmwy 时间: 点击数: 906)
- 收藏
-
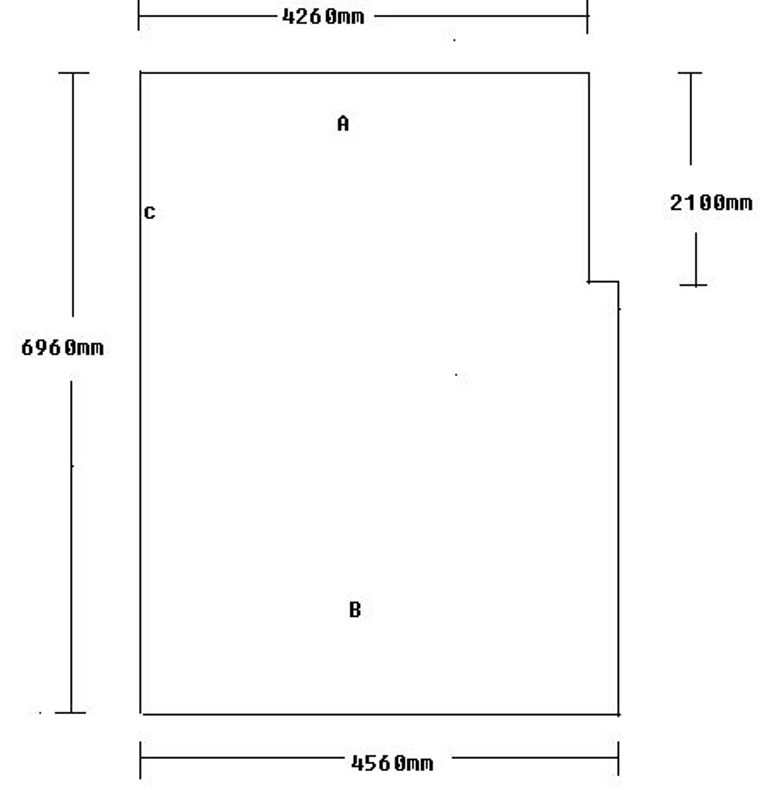
听音室位于地下室,长宽如图,高度为3050MM (尺寸均为毛胚时测量);地下室没有一根梁,无窗户,只有一个门,门的位置在右侧的中间某个位置(可以灵活处理)。我准备在这个房间内安装一套2声道和一套7.1声道(独立);因为不是正规的长方体,部分异型(如图),我现在疑惑,音箱放在A面还是B面。请大家帮我出出主意,并说说理由。
关于A面两侧反射点不对称的问题,有个自己的不成熟的想法,我想在C面的位置起一堵一样厚30CM的墙体,达到两边对称。然后将音响放在A面,这样对称点解决了,是不是还能达到号角效应,前窄后宽,最后能在一定程度上有助于系统能量的释放?
·
(作者:zxmwy 时间:2007-11-21 16:29:05)·
(作者:HI.HI 时间:2007-11-21 21:49:17)- 赞少有3.05M的高度!墙体的短距离30CM不对称一般可以接受,凭直觉,B面放器材音箱,门改开缺口处要好写些,空间宝贵啊!况且还要放一套独立7.1声道,中置和左右主声道的分离度很要紧,这样放合理些。在C面起30CM的墙体,虽有号角效应,但搞不好负面效果会多于正面的效果,如能力太集中,声音会发冲,音场也较窄等。。。臆想的,供参考。
·
(作者:HI.HI 时间:2007-11-21 22:14:13)- (勘误:如能量太过集中)
地下室,高度隔离的房间烧烧真是逍遥自在,老兄到时候音室声音的吸收和扩散处理倒是一个难题,既要克服啤酒桶效应又要使声音活起来,调校需要一定的时间和足够的耐心。预祝 zxmwy 兄完满成功!- (勘误:如能量太过集中)
·
(作者:sihaiou 时间:2007-11-27 20:43:03)- 如此高度的地下室,似应为全地下式,考虑过环保问题吗?主要是氡气浓度较高,空气流动性太差,挥发很慢。此种无味气体有致癌性,当然如是老房子,人在里面待的时间不长,那就问题不大。至于湿度,也得注意。
